为了父母,他花30万爆改47㎡平房,完工效果确实让人大开眼界
结构设计/产品品质/日常生活/爱好
每晚为您增添家装蔬果,改建意念,与美好未来故事情节,他们值得称赞更快日常生活!
上了岁数的双亲,总讨厌安于一隅,相较住在卫星城的而言,双亲常常讨厌老屋旁边的热闹非凡,单纯的邻里,一百米路就能走到的小卖部,小酒馆飞来的清香。
此次事例源自一名陈先生,他优先选择为他的双亲改建家中47平方米的大屋,整座改建操作过程耗费了30W,周遭的邻居们回来参访后,都艳羡了,坦言让人目不暇接。
改建五十年大屋

大屋外长满了青苔,踩在上面的人已经不像小时候一样,能够大胆跑过去,陈先生小心翼翼地走过。这样的小路对上来岁数的双亲而言,的确是一个隐患。
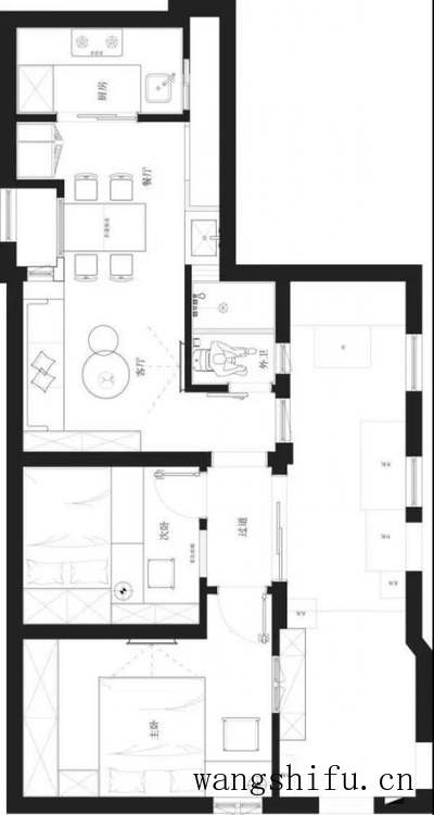
大屋的户型稍显奇葩,有点像是豆芽一般的狭长户型,同时狭长的户型增添的是潮湿、发霉以及采光问题。那么47平方米的大屋如何改建呢?

大屋中缺少门厅和卫生间,这是一个硬伤,日常上厕所都得跑去公共厕所,实在不便。虽然户型的结构设计比较困难,但是结构设计师通过沟通和尝试,将户型重新规划,整体效用好上了许多。

改建前后对比
大门
改建前的大门是大屋的风格,已经破旧不堪,现在通过改建,在原本青苔遍布的路面上铺上了一层青石砖;将破旧的房门和门框全都拆除,换上了玻璃推拉门。这不仅增强了室内采光,还让大屋拥有了一个全新的面貌。这让双亲在这里居住更加舒适自在。


在改建后结构设计师增加了一个玄关,让空间拥有更多的私密性,并且也有了园林曲径通幽的感觉。

客厅
改建前的客厅显得十分杂乱,采光十分差,就是在白天也能都不容易看清地上的东西。

改建后的客厅为的是解决采光问题,使用了两个方案,一个是射灯+灯带的组合,一个就是在屋顶开辟了一个天窗,这两个方案完美解决了客厅的采光问题。


在客厅中,为的是让这座大屋更有宜居性,结构设计师在改建中,增加了许多苏式元素,像是锦彩绘,已经天花板上的纹样,形成了上下户型,也让整座家中都显得更为灵动。


餐厅
原本的大屋餐厅就是客厅中的小方桌,日常用餐都是草草了事,现在结构设计师利用了客厅部分空间,打造了一个独立的用餐空间,原木风的感觉让家中更显温馨,更有烟火气息。


原先的厨房现在被搁在餐厅后方,用了玻璃推拉门进行隔断,让空间更显得通透,还避免了油烟弥漫。
卧室
改建前的主卧,整体设施都使用了许多年头,在卧室中堆积了许多杂物,而储物空间又明显不足,所以整体显得极为杂乱。


改建之后,结构设计师计入了一整排衣柜,同时利用窗边的位置,打造了一个小梳妆台,方便母亲的梳妆打扮。



在整座47平方米的大屋中,从玄关到主次卧都加入了中央空调,让空间避免了潮湿和闷热。竣工效用的确让人目不暇接。
-END-
免责声明:文章部分文字、图片、视频等内容包括但不限于以上所提及来源于网络,如有侵权,请联系删除,版权归原作者所有。