500平米的房子这样装修面积大了1倍,装修只花40万元!-华侨城108坊别墅装修
500平米五居室的房子怎么装修比较好呢?华侨城108坊别墅的一位业主装修出的 500平米的古典五居室,美观大气,让人争相模仿。业主介绍,本套面积500平米的古典五居室半包装修费用只花了40万,究竟是怎么做到的呢?
预算:40万
风格:古典
案例套数:692
【施工单位】:青马别墅设计【施工小区】:华侨城108坊【施工面积】:500平米【装修风格】:新古典风格【设计理念】:现代流畅的线条与简洁明快的色调契合得十分艺术,不仅体现了空间的现代优雅,更绽放着新古典的庄重和高贵,让看似平淡的空间,郁结着不张扬的华丽之美。
客厅是家居设计的核心区域,是我们长时间活动的区域,也是客人来访时的主打区域。客厅设计的好坏对于家居整体的颜值有很大的影响。

华侨城108坊500平米新古典风格——客厅

空间吊顶较为低沉,但是细腻的条纹隐约间更显几何质感,与矩形皮包的立面显出立体感。
私密性是卧室重要的属性,它不仅仅是供人休息的场所,是家中温馨与浪漫的空间。卧室的壁饰不宜过多,还应与墙壁材料和家具搭配得当。卧室的风格与情调主要不是由墙、地、顶等硬装修来决定的,而是由窗帘、床罩、衣橱等软装饰决定的,它们面积很大,它们的图案、色彩往往主宰了卧室的格调,成为卧室的主旋律。

卧室以简约的线条勾勒出规整,几何立面以现代艺术与简画让陈设得体的新古典家具更显温婉素静。
卫生间安装了一面镜子,无论是洗漱还是梳妆都会方便很多,卫生间安装了洗手盆,使用起来更方便。地面做了防滑处理,避免出现意外。家里的马桶倒是不错的,使用起来很翻遍,而且马桶占地小、噪音少、外形更简洁。

华侨城108坊500平米新古典风格——卫生间
餐厅是家居生活的心脏,不仅体现了美观,更体现了实用性,整体性。在布置餐厅的时候,可以使用木制的咖啡色餐桌,虽然表面看起来呆板,但是带来的效果却是非常生动的,简单的长方桌,条纹椅,让餐厅充满原始自然的味道。

开放式的设计令视野开阔,加强了空间之间的互动性。
厨房是家里做饭的地方,里面的装修也就是橱柜和家电,很多人都会在厨房做吊顶,这个是很有必要的,因为厨房的墙顶上会有很多的线路,吊顶可以起到修饰的作用。还有很重要的是收纳功能一定要多,厨房的东西是家里东西最多的地方了,插座也要多,家电的插座用量是很大的。

华侨城108坊500平米新古典风格——厨房
家中拥有一个书房是很好的,在这个空间里可以有很多属于自己的时间,也可以收藏一些书,对我们的生活是很有帮助的。

华侨城108坊500平米新古典风格——书房
安全性是儿童房设计时最需要考虑的重点之一。孩子们经常在房间里玩闹嬉戏,如果家具的形状比较尖锐,孩子们可能在玩闹中容易受伤,我相信这是很多家长都不愿意看到的。所以,我们在选购家具时应该尽量选择圆滑的形状,既美观又不会对孩子造成威胁。

华侨城108坊500平米新古典风格——儿童房
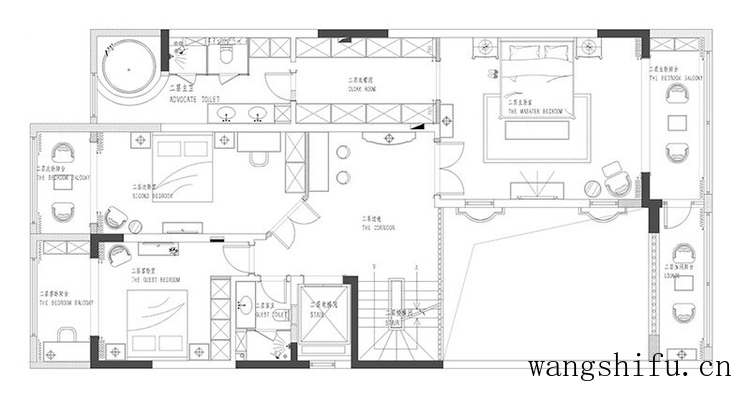
以下就是本套华侨城108坊别墅小区500平米五居室房子的户型图。

华侨城108坊500平米新古典风格——二层平面图

华侨城108坊500平米新古典风格——三层平面图

华侨城108坊500平米新古典风格——一层平面图

华侨城108坊500平米新古典风格——负一层平面图
500平米的房子如何装修才好呢?看完上述业主的分享,你心里是不是有了自己的想法呢?对于500平米的房子来说,打造成五居室更能满足日常生活的需求,而且古典风格能让室内更加美观、大气。