90年代的老房子,经过改造之后,也能拥有不一样的时尚(90年代旧房子)
90年代的老房子,经过改造之后,也能拥有不一样的时尚
房子是90年代的老房子,虽然房子的年限比较长一些,但周围的设施和环境都比较好,又是学区房所以一直让他们喜欢。为改善自己的居住环境,比起买房子更想要把房子重新装修,让家人可以居住在更舒服的环境中,没想到30万的改造让老房子焕然一新。

房屋户型:复式
房屋面积:118平方米
装修预算:30万
设计师:李文伟
主要建材:大理石材、烤漆玻璃、天然木皮、进口耐磨地板、特殊磁漆

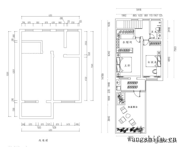
【户型图】

原有100多平的房子能满足家里的入住需求,但对于太多功能性的需求就没有办法满足到,而且一楼客厅小采光也受到影响,所有很多的功能都没有办法满足到。而二楼又因为卧室空间狭长会有空间的浪费,让日常的使用变得不方便。
【改造后】

一楼是把入口给做了重新的改动增加采光的效果。而且把厨房改造成客房居住的需求也跌倒满足,厨房跟餐厅做了重新的布局让空间变得更灵活,也让动线的使用变得方便许多。

二楼属于隐私的空间,在设计的时候按照家人日常的居住需求,给它做了相应的改动设计让主人的隐私能保护住,也能满足日常的收纳所需。还有个休闲的露台设计,可以满足女主种植花草的需求,让人在家里感受到自然的清爽气息。

【玄关】
设计重点:自然景观


玄关设计的时候做了天井预留的设计,让玄关的绿植可以在阳光的照射下,形成一种自然而又温馨的景观,让人一进门的心情都能变得好起来。

玄关收纳选择内嵌的明暗柜增加收纳也可以让空间变得更有层次感,黄色的沙发摆放在这里方便换鞋,也因为明亮的颜色让空间变得更温和。
【厨房】
设计重点:开放空间更明亮

厨房跟餐厅选择开放式的设计,让空间能更好的连接在一起,而且木质的餐桌跟橱柜同样的款式,让空间变得更统一协调。而且餐桌也可以当做岛台使用,让整体的实用性和灵活性变得更强。
【玄关】
设计重点:简约不失实用性

在设计的时候把餐厅跟其他的区域贯穿在一起,而在餐厅吃饭能看到玄关的自然景观,让人感觉到最天然的气息。
【客厅】
设计重点:多功能设计满足使用需求



客厅改造后的空间变得更宽敞,而且室外的自然景观正好成为客厅的美景。客厅多数墙面都选择留白的设计,让空间拥有着简约大气的时尚气息。


客厅里的众多绿植搭配上曲线的灯具,在灯光的照射之下有一丝丝浪漫的温馨气息,也能在家就感受到自然的美景。

客厅空间比较大就做了一个下沉式的设计,可以增加空间的层次感,也能把区域更好的划分开,感受到不一样的气息。




客厅做了多功能性的桌子设计,可以满足对于它的不同需求,而且内嵌的柜子也做成白色的款式跟墙面融为一体,这种设计也更能满足日常的收纳所需。


原本客厅跟楼梯共用的墙面做了局部的拆除,让拥挤的空间变得更通透一些,简单的楼梯跟留白的墙面搭配在一起更显自然的气息。
【卧室】
设计重点:释放压力的好地方


卧室没有选择主灯而是用辅助的光源,晚上在温暖的灯光照射之下能让人拥有良好的睡眠。卧室没有多余的设计,在床头做了木栅栏的装饰方法,让简约的空间中多了丝温馨的气息。


卧室外面就是家里的露台,这是休闲的观景区域平时工作累的时候,或者是心情烦躁的时候就可以在这里坐着看风景,让郁闷的心情得到缓解。
【儿童房】
设计重点:轻松可爱



儿童房是用简约中带有可爱元素的装修方式,让孩子在这里居住能感受到自由轻松的气息,也能让孩子愿意自己居住在这里。而且在儿童房外面就是家里的老树,让孩子能感受到生命和时间的美好,也能让大树陪着孩子茁壮的成长,感受到生命顽强的魅力。

现在的房子价格都比较高,特别是这种环境好而且又是学区房的房子价格更是要贵很多,比起重新买一套房子选地点选户型还得有合适的价格,不如给自己家里的老房子做一个改造装修,它可以让空间变成我们需求的样子,也能满足我们日常居住的需求。
像这个老房子经过改造设计之后就跟新房一样,比起其他新房子的选购可能也没有老房子改造后的效果好。
【图片若有侵权,麻烦私信删稿】