90㎡老宅翻新,拆、改、增,每平米都不浪费(自家老宅能重新翻新改造)

序·Preface
回到起点,
追溯时光,
期待新生,
无限憧憬,
延续属于我们的时光故事...
《旧时光·新印象》
这是一套留有时光痕迹的老房子,女儿成家之后,仅剩老两口一起生活。原为传统的两室一厅结构,整个空间的采光较差,90㎡的空间内窗户寥寥无几,昏暗、空气不流通、家庭成员间缺少互动场景、缺乏储物空间等等,问题不少。
考虑到父母逐渐老去,需要更好的生活空间,律师女儿找到我们,希望为自己的父母翻新老房子,在经过一番商谈,结合老夫妇的生活习惯以及需求后,打破原有结构,弱化空间之间的边界感,重塑一处惬意之居。
项目信息
地址:厦门海城花园
面积:90㎡
风格:原木风
硬装费用:10万
软装费用:8万
屋主需求
1、采光不好,希望优化整体的采光;
2、原来两居不够用,需要三间卧室;
3、大门要向外移一点,需要一个玄关;
4、卫生间要做成三分离;
5、次卧要加一个书桌,孙子来的时候可以用,最好是榻榻米形式;
6、储物空间不够,需要非常非常多的收纳空间。
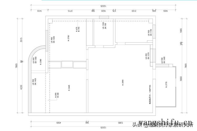
户型图

原始户型图
户型缺点:
1、入户无玄关,直接见厅;
2、客厅没窗户,整体采光差;
3、厨房空间过于局限;
4、老式卫生间的干湿分离不实用。

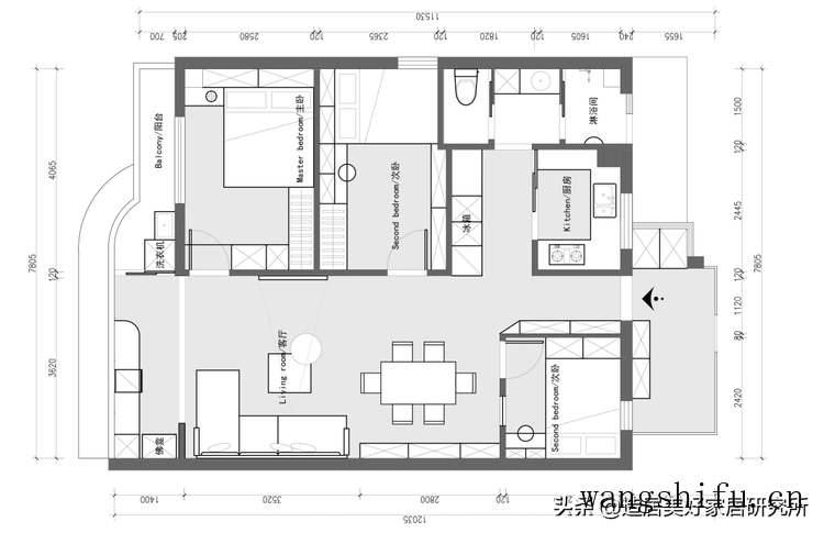
平面图
改造方案:
1、打通原有主卧与客厅之间的隔墙,设计为客餐厅;
2、原客厅位置改造成客厅,加一扇室内窗向客餐厅借光;
3、增加出的客房与入户门之间加一道弧形墙,形成一个新玄关;
4、厨房位置较小,利用过道位置做高柜放置冰箱电器等;
5、卫生间挪至原餐厅位置,设计成三分离样式,方便日后使用;
6、剩余空间隔出主卧与次卧,主卧增加整屋柜体设计,增加收纳,次卧做成榻榻米,可做卧室,也可做书房。
玄关


入户进门的位置原本没有玄关,调整格局后,左右两边都新砌了一道墙,形成一个玄关小走廊,避免了入户见厅的尴尬。
因鞋柜被移至门外空间,走廊内只做了简单的墙面挂钩收纳设计,方便日常进出门挂个衣服、包包等物件。
客厅




考虑到整体采光性较差,我们将原有的客厅、卧房等墙体全部拆除,重新划分空间,依次是餐厅、客厅及阳台,三者之间不做任何遮挡,保证室内空间的一个采光度和延展性。
调整之后的格局,由原先的局促变成宽敞明亮,窗户部分做成卡座形式,阳光照入,在此处读书、喝茶、闲聊,好不惬意。
整体空间以原木色为基底展开,在素白的映衬下,舒适平和。
餐厅



餐厅位置调整至玄关右侧,与客厅之间的固有边界模糊,仅通过定制餐边柜做出功能上的划分,因所处位置并没有窗户,打通之后借助客厅引光及灯具照明改善采光问题。
厨房



重新整合后的厨房,完美嵌入一组L型橱柜,并向外延长出一条新过道,利用整墙高柜与厨房紧密相连,形成一个独特的烹饪+存储区域。
延展出的空间,定制的墙柜将冰箱、烤箱等完美嵌入,其余均作为储物空间使用,视觉上更为简洁,也为日常厨具、零食、清洁用品等收纳提供便利。
卧室





原始格局全部拆除后,重新划分出了三间卧室,主卧与次卧藏身在电视背景墙之后,客卧则占据原始客厅位置,临近餐厅区域。
三间卧室在设计上,均以收纳储物+休息为主,直接在墙中嵌入柜子,保证储物功能,整体色调与客厅一致,原木色贯穿始终。
卫生间


卫生间由原先的干湿分离改成三分离设计,马桶区、洗漱区与淋浴区各自独立,使用起来更加便捷。
阳台


阳台保留原始造型,重新涂刷、铺砖,替换窗户材质,洗衣设备移至此处,让日常操作动线更流畅。
这个案子,从洽谈到完工着实花费了一段时间,这里除了有新旧观念的碰撞外,还有老人对于旧物审美的坚持。为了充分尊重老人的意见,我们将原先做好的造型全部简化,并依照老人喜爱的颜色、物品进行装饰,就是希望即使整个空间都发生了变化,但依旧留下了属于往事的记忆。
全新的居所,会有全新的故事,但不代表旧时光的落幕,时光印记已牢刻此处,新的篇章开启,故事未完待续......