参观邻居三口之家,140㎡横厅户型装新中式,进门玄关就圈粉无数
家装设计,因每个人的需求及喜好不同,所以我们设计师所做的每一套设计作品都是经过无数次
从功能、美学、文化、品味等方面认真研究与推演出来的,运用简约、时尚、流行、个性的、不拘一格等一系列的元素进行改造,来适应现代人的审美情趣与生活理念。

今天为大家分享的是一套140㎡四居室,以现代设计手法,融入了中式元素,采用让人觉得
轻松自在的原木色调,在这快节奏喧嚣的时代,这样的色调空间氛围就像是一泓清泉,令人神清气爽,这也正符合业主独有的个性品味。
装修风格:现代新中式
实际面积:140㎡
空间格局:4室2厅
设计师:千里莺
项目位置:四川宜宾
硬装造价:21W
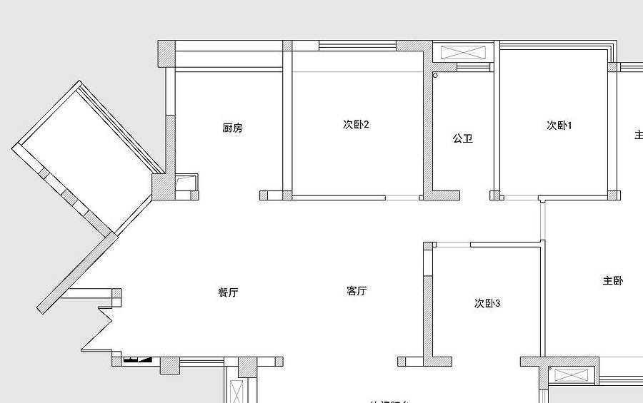
户型图

展开全文
本案户型相对比较周正,算不上是真正的南北通透,好在客厅阳台的空间面积较大,可利用率高,作为横厅的户型,客餐厅比较宽敞大气,但也有些缺陷,就是进门没有独立的玄关,带尖角的异形空间让人感觉多少会有点唐突。
平面图
经与房主的多次沟通,将进门设了玄关柜,以此作为空间的区分,左侧三角区域做装饰储物柜拉平,餐厅做水吧台与长条餐桌椅连为一体,南阳台与客厅分割开来,做独立的休闲阳台与茶室,以确保动静区分,将南次卧作为衣帽间及主卧的进门,做一体化套房设计,整体空间开阔很多,储物功能也增大很多。
玄关
入户做悬空鞋柜,圆形木质屏风隔而不断,不仅达到采光的效果,
同时具有中国传统文化的古典韵味,顶面同样采用原木饰面,
简约的原木风格调,让人回归内心的平静,清新质朴的原木融入在空间里,更显温馨舒适,脉脉温情,透着最自然的美。
客厅
来到客厅,整体感觉又不太一样,以白色为主的空间,融入原木色,点缀轻柔稍微灰色家居软装搭配,氛围尽显素雅,耐人寻味 ,利用少量的大理石线条做边框,中间以壁布做装饰,在金属线条的映衬下,让中式格调又带有那么一点时尚的精致感,与阳台之间黑色四叶推拉门很是抢眼,在温文尔雅的传统文化的氛围里透露出个性之美。
过道
过道的尽头以装饰画来点缀,让狭长的空间不再单调,设计反光灯槽的吊顶,在金属线条材质的陪衬下
给整个空间带来意想不到的韵味。
餐厅
浅灰色地砖通铺,让整个大厅空间显得更加的开阔和大气,定制的大理石水吧台与岩板餐桌连为一体,让生活增添几分乐趣与时尚浪漫,精致的蓝色布艺软凳,
轻盈明快,让在个性而又时尚的餐厅吊灯下用餐、交谈、喝酒、聊天…成为一种享受。
厨房
厨房在大窗户下映衬下,明亮宽敞,尤其是U型台面,让操作区域更加的方便实用,地面做回字形波导线,虽然现在波导线不太流行,而在这个空间里反而感觉不可或缺。
主卧室
主卧室不仅延续了中式风格的格调,床头复古绿的壁布装饰简直就是绝妙的搭配,在中间的造型灯光槽的辉映下,显得格外养眼,将房间营造出如诗如画、宁静祥和的优雅空间氛围,在床尾做整排衣柜,长条形的金属拉手也能体现出细节,简单的空间布局,做到了恰到好处的美。
房间虽然不大,但也留出了休闲阅读的小空间,利用通往衣帽间房门旁边的空间做了一组展示柜,放些书籍,睡前在这精致的小圆凳坐下安静的阅读,同时欣赏着窗外的夜景,仿佛隐匿尘世繁华间。