• 西安立邦刷新服务多少钱(西安立邦刷新服务多少钱一次)

    西安立邦刷新服务多少钱(西安立邦刷新服务多少钱一次)

    现在油漆行业中品牌是非常多的,但是不论服务还是油漆的质量立邦做的是非常好的,尤其是现在立邦提供的立邦刷新的服务。立邦刷新的服务也受到了很多人的欢迎,立邦刷新的服务主要是为消费者提供的涂料施工服务,包括墙面涂刷和木制品家具涂刷。除此之外它的刷新服务还包含解决墙面裂纹、污渍、掉皮、发霉等问题,那么接下来小编就给大家说说有关于立邦刷新的服务知识。   立邦刷新服务工费。1、快速...

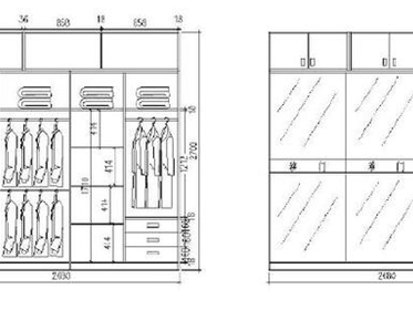
  • 衣柜平方米是怎么算的

    衣柜平方米是怎么算的

    计算衣柜平方分两种: 1、展开衣柜面积进行计算,将衣柜展开面积平方数,然后把每张板材的面积进行相加即可。 2、采用投影面积来计算,计算方法很简单,只要把衣柜外框的宽度和高度相乘,就可以算出投影面积。要计算价格的话,再用投影的面积乘以单价就行。比如:衣柜宽度是2米,高度3米,单价900元/平,那么衣柜价格是2x3x900=5400元。 衣柜用什么板材好? 1、实木...

  • 颗粒板做衣柜好吗

    颗粒板做衣柜好吗

    颗粒板做衣柜挺好的。因为颗粒板做衣柜的话,它的硬度挺高,防潮性也挺好的,只不过因为做起来的档次不是那么的高,但是性价比还是很可以的。具体好处如下: 1、装饰性强:颗粒板比天然的实木材质外貌更加平整腻滑,没有节子、虫眼等缺点,而且不开裂、纵向和向强度同等,可以隔声、防霉、保温等。 2、不易变形:就算悬挂上厚重衣物也不容易压弯。因此在很多欧洲家具市场上,也可以看到很多颗粒板...

  • 欧松板能做柜体吗

    欧松板能做柜体吗

    欧松板能做柜体,欧松板适合用于家居装修中的柜体、橱柜、衣柜、鞋柜等家具制作。特别是衣柜、鞋柜等柜体,因为需要具备防潮、耐用、环保等特点,欧松板的优势更加明显。在制作衣柜柜体时,欧松板可以与其他板材进行混合使用,达到更好的效果。 欧松板的使用已经得到了越来越多家庭的认可和选择。在制作衣柜柜体时,欧松板的性能可以完全满足日常使用的需求。但需要注意的是,欧松板的价格较高,因此在选择...

  • 整体橱柜有什么配件

    整体橱柜有什么配件

    整体橱柜常用的配件包括铰链、抽屉常轨、钢抽、刀叉盘、拉篮、吊柜五金挂件、柜身组合器等。选购时,要特别注意五金的质量,因为厨房潮湿、烟熏火燎的环境,质量差的五金件很快就会变形不能使用,从而造成橱柜丧失正常使用功能。 整体橱柜定制注意事项有哪些? 1、材质选择。 它的材质选择不仅会影响到橱柜的整体效果,同时还会决定它的使用寿命。所以大家在定制时,要注意它的材质选择。比如在...

  • 实木衣柜有甲醛吗

    实木衣柜有甲醛吗

    实木衣柜有甲醛。实木衣柜中的甲醛主要来源于生产过程中使用的胶水、油漆等含有甲醛的材料,即使是全实木家具也无法做到零甲醛。如果实木衣柜中使用的隔板是纤维板或人造板,也会存在甲醛污染。 实木衣柜如何选择? 1、材质鉴别:首先,要辨别是否为真正的实木材质。实木家具的一个特点是木纹和疤结的自然性,即柜门的正面和背面应有相应的花纹。 2、材质选择:实木衣柜通常采用榉木、白橡木、...

  • 卧室家具及卧室家具布置图片大全-舒适的睡眠从这里开始

    卧室家具及卧室家具布置图片大全-舒适的睡眠从这里开始

    卧室是我们家中最私密的空间之一,也是最重要的功能区域之一。卧室的设计不仅需要考虑到美观,还需要考虑到舒适性和实用性,家具的选择和布置也是至关重要的。本文将为大家带来一些卧室家具及卧室家具布置图片大全,供大家参考。一、床的选择和布置床是卧室中最重要的家具之一,它不仅需要舒适,还需要美观,因为床是卧室的中心点。在选择床的时候,要根据自己的需求和卧室的大小来选择。如果卧室比较小,可以...

  • 裤架(裤架抽拉伸缩架)

    裤架(裤架抽拉伸缩架)

    如何选择适合自己的裤架及裤架抽拉伸缩架?裤架裤架是衣柜中不可或缺的组成部分之一。它可以帮助我们更好地组织和存放裤子,使衣柜更加整洁、实用。在选择裤架时,我们需要考虑以下几个因素:材质裤架的材质一般有塑料、金属、木质等。塑料裤架轻便、价格便宜,但其承重能力较低;金属裤架承重能力较高,但价格相对较贵;木质裤架质量较高,但是价格也较高。尺寸裤架的尺寸也是非常重要的考虑因素。一般来说,...

  • 客来福衣柜(客来福衣柜几线品牌?)

    客来福衣柜(客来福衣柜几线品牌?)

    客来福衣柜:选择几线品牌,打造个性化衣柜定制客来福衣柜:为什么要选择几线品牌?在装修过程中,衣柜是一个重要的组成部分。对于很多业主来说,衣柜的选择不仅仅是为了存放衣物,更是为了展示个性和品位。因此,选择一款好的衣柜品牌非常重要。客来福衣柜是一个备受关注的品牌,备受消费者喜爱。但是客来福衣柜也有多个线别,那么选择几线品牌有什么好处呢?首先,几线品牌的质量有保障。客来福衣柜作为知名...

  • 拉米衣柜(拉米衣柜是几线品牌)

    拉米衣柜(拉米衣柜是几线品牌)

    拉米衣柜是几线品牌?拉米衣柜优点和缺点有哪些?拉米衣柜是一种常见的衣柜品牌,它的品质和性价比备受消费者的青睐。那么,拉米衣柜是几线品牌呢?拉米衣柜有哪些优点和缺点呢?下面我们来详细了解一下。拉米衣柜是几线品牌?拉米衣柜是一种中高档的衣柜品牌,属于二线品牌。虽然不如一线品牌那么知名,但是其品质和性价比都相当不错,深受广大消费者的喜爱。拉米衣柜的优点1.材质优良:拉米衣柜采用的是高...

  • 丹奴定制衣柜(丹奴定制衣柜价格)

    丹奴定制衣柜(丹奴定制衣柜价格)

    丹奴定制衣柜,让你的衣物有一个舒适的家丹奴定制衣柜价格,性价比高的选择丹奴是一家专业的定制衣柜品牌,其定制衣柜以其高品质、多样化的设计和良好的售后服务而备受消费者喜爱。在装修过程中,选择一款适合自己的衣柜至关重要,不仅可以提高生活品质,还能有效利用空间。因此,丹奴定制衣柜是一个不错的选择。丹奴定制衣柜价格相对较高,但是性价比却很高。因为丹奴使用的是高品质的材料,如进口板材、高密...